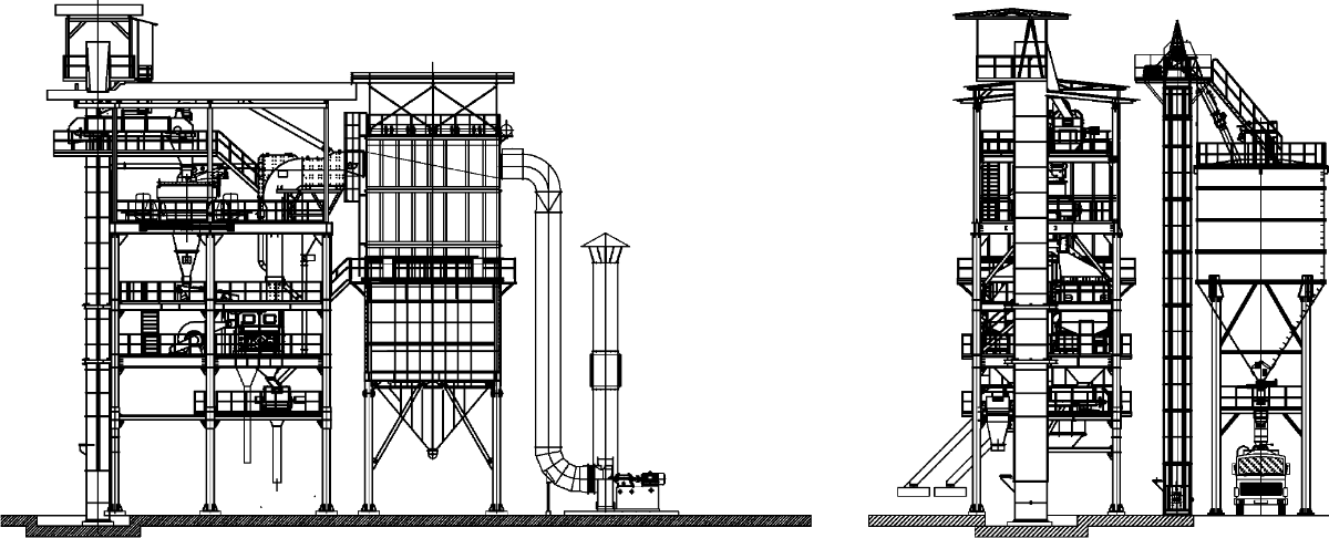
生產能力:50~200t/h
入料粒徑:0~40mm

采用高度集約的落樓式全封閉布置,集高效制砂、粒型優化、石粉控制、級配調整、含水率控制、環保處理于一體,更實現了機制砂粒型、級配、含粉量等各項指標的全面提升,為砂石、水泥、混凝土產業鏈的發展創造新的機會和價值。
考察電話:0371-53738676

讓制砂更加綠色化、全環保、智能化

適用于商混站、砂漿站、水穩站、小型砂石廠等環境
小型砂石廠
商混站
砂漿站
水穩站
我們積累了豐富的實戰經驗,案例現場遍及礦山、水泥、冶金、化工、建筑垃圾等領域,可以免費提供方案設計。
量身打造生產方案
質量靠譜價格優惠
量身打造生產方案
質量靠譜價格優惠
掃碼關注微信公眾號
考察電話:0371-53738676